strategisch gelegen te verbouwen handelshuis
Huurprijs
Deze voormalige frituur is geheel afgebroken binnenin, de kelder is terug vrijgemaakt en de decks zijn eruit genomen.
Klaar voor een hele grondige verbouwing waarin dus alles dient te worden voorzien : niveau's, vloeren, wanden, trappen, electro, etc.
Eigenaar zal in samenspraak de voorgevel bekostigen en uiteraard het dak voorzien.
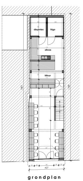
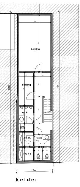
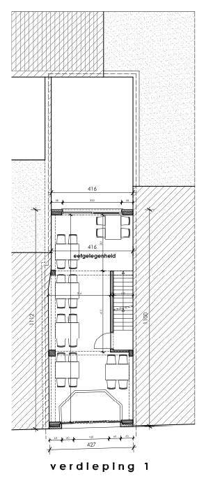
Naargelang de beoogde activiteit (alles is toegestaan) beschikt de huurder dus over een grote kelder, een gelijkvloers en een 1e verdieping.
De eigenaar voorziet een aparte inkom voor de overige verdiepingen dewelke niet in deze huurprijs zitten.
Plannen hierbij illustreren hoe de zaak er kan uitzien
Geen overname te betalen, onmiddellijk vrij.
Klaar voor een hele grondige verbouwing waarin dus alles dient te worden voorzien : niveau's, vloeren, wanden, trappen, electro, etc.
Eigenaar zal in samenspraak de voorgevel bekostigen en uiteraard het dak voorzien.
Naargelang de beoogde activiteit (alles is toegestaan) beschikt de huurder dus over een grote kelder, een gelijkvloers en een 1e verdieping.
De eigenaar voorziet een aparte inkom voor de overige verdiepingen dewelke niet in deze huurprijs zitten.
Plannen hierbij illustreren hoe de zaak er kan uitzien
Geen overname te betalen, onmiddellijk vrij.