4 (à 5) garages te koop voor vnl opslag, of na werken voor meerdere wagens.
Vraagprijs
In deze dichtbevolkte buurt is er altijd nood aan opslag van goederen. Hier kan dit, aan democratische prijzen en dicht bij waar men woont.
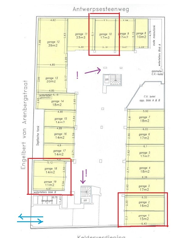
G1 & G2 liggen rechtop de inrit en kunnen tevens gebruikt worden voor een zelfparkerende wagen; of mits lichte aanpassing wordt dit 1 grote garage van 4,6m breedte waarin je kan parkeren met je 2 wagens. G1 heeft een nieuwe rolpoort.
G10 is breed genoeg voor een wagen, doch gezien de pilaar van het gebouw ervoor kan er enkel een stadwagentje (en veel gerief) in. G10 heeft een nieuwe kantelpoort.
G18 & G19 hebben geen tussenmuur (die kan worden her- en verplaatst) maar momenteel nog wel 2 oude rolpoorten. Deze laatste kunnen zonder problemen worden vervangen door 1 brede rol- of sectionaalpoort. Dan kunnen hier ook, mits wat manoeuvres (lift gebouw deels in de weg) 2 auto’s naast elkaar staan .
Als investering is dit perfect, en al zeker als 1 garage zelf wordt gebruikt, de verhuur van de andere betaalt deels de lening.
Doorrijhoogte parking max 1,85m. Elektriciteit in de garages aanvraagbaar ... bij syndic.
Alle garages hebben aparte kadastrale percelen.
Alle 4 garages blijven droog ! Gerief G10 voorlopig uit voorzorg op paletten zetten.
NB is nuttige breedte, ND is nuttige diepte, telkens in meter. Huurprijs / mnd
N° NB ND m² verhuurd
G1 2,30 6,43 15 75,-
G2 2,32 6.32 16 70,- (ouder contract)
G10 3,19 5,20 17 75,-
G18 2,50 5,12 12,8
G19 2,04 4,97 10,1 130,- G18+19
Totaal 70,9 m² 350,-/mnd = 4.200,-/jr
Lees meer Verberg
G1 & G2 liggen rechtop de inrit en kunnen tevens gebruikt worden voor een zelfparkerende wagen; of mits lichte aanpassing wordt dit 1 grote garage van 4,6m breedte waarin je kan parkeren met je 2 wagens. G1 heeft een nieuwe rolpoort.
G10 is breed genoeg voor een wagen, doch gezien de pilaar van het gebouw ervoor kan er enkel een stadwagentje (en veel gerief) in. G10 heeft een nieuwe kantelpoort.
G18 & G19 hebben geen tussenmuur (die kan worden her- en verplaatst) maar momenteel nog wel 2 oude rolpoorten. Deze laatste kunnen zonder problemen worden vervangen door 1 brede rol- of sectionaalpoort. Dan kunnen hier ook, mits wat manoeuvres (lift gebouw deels in de weg) 2 auto’s naast elkaar staan .
Als investering is dit perfect, en al zeker als 1 garage zelf wordt gebruikt, de verhuur van de andere betaalt deels de lening.
Doorrijhoogte parking max 1,85m. Elektriciteit in de garages aanvraagbaar ... bij syndic.
Alle garages hebben aparte kadastrale percelen.
Alle 4 garages blijven droog ! Gerief G10 voorlopig uit voorzorg op paletten zetten.
NB is nuttige breedte, ND is nuttige diepte, telkens in meter. Huurprijs / mnd
N° NB ND m² verhuurd
G1 2,30 6,43 15 75,-
G2 2,32 6.32 16 70,- (ouder contract)
G10 3,19 5,20 17 75,-
G18 2,50 5,12 12,8
G19 2,04 4,97 10,1 130,- G18+19
Totaal 70,9 m² 350,-/mnd = 4.200,-/jr
Lees meer Verberg