Goed gelegen verhuurd winkelpand GENK
Vraagprijs
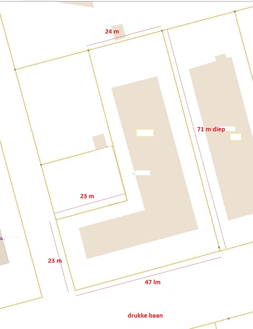
Dit pand (1 bouwlaag) op een hoek, op een terrein van 2.307 m², is ideaal gelegen langsheen een drukke verbindingsweg, samen met andere publiekstrekkers. Eigen parking van ca 16 wagens.
Het is verhuurd aan 8.630,-€ / maand, de OV bedraagt 10.500,-€
Gebouw zelf is in goede staat.
Gezien de stipte betalingswijze van de huurder (contract sinds 2023) is discretie hier vereist.
Prachtig rendement van 8 %.
Op termijn kan hier een gebouw komen met 2 of meer bouwlagen.
Het is verhuurd aan 8.630,-€ / maand, de OV bedraagt 10.500,-€
Gebouw zelf is in goede staat.
Gezien de stipte betalingswijze van de huurder (contract sinds 2023) is discretie hier vereist.
Prachtig rendement van 8 %.
Op termijn kan hier een gebouw komen met 2 of meer bouwlagen.